Apartment types

From 1 beds to luxurious penthouses

With space to spread out, both inside and out.

The enormous balconies - with space for both outdoor dining and living - ensure that the spirit of 'pavilion living' becomes part of your day-to-day.

Scot Murray, CEO

Apartment types

These are the most spacious apartment homes that we have designed to date.
One Bedroom Executive Type A & B

72 m² & 80 m²

Two Bedroom Executive

114.6 m²

Three Bedroom Exec. & "Convertible"

180 m²

Penthouse One & Two

304 m² & 174 m²

With space to spread out, both inside and out

Floor plans

While the apartments at The Pavilion are more expensive than in our other locations, they just might be the best value for money that we have offered yet. With sizes larger than the competition, extra high ceilings, balconies that cantilever out 2.4 metres and detailing that goes above and beyond, this is our most exciting development for our most discerning customers.

One bedrooms

One Bedroom Executive Type A - 72 m²

A spacious one bedroom home with massive balcony, guest bathroom and full-wall kitchen.

One Bedroom Executive Type B - 80 m²

Even more space in the living room and a pool-facing balcony accessible from both the bedroom and living.

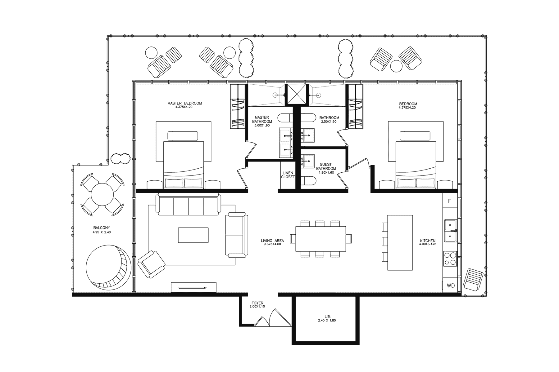
Two bedrooms

Two Bedroom Executive - 114.6 m²

Your quintessential two bedroom, two-and-a-half bathroom home with indoor and outdoor living.

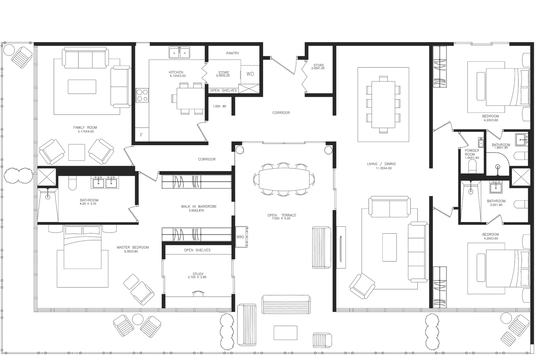
Three bedrooms

Three Bedroom Executive - 180 m²

A family home in the sky with many different customizable options to make it just right for you.

Three Bedroom Executive 'Convertible' - 180 m²

The space to spread out or the flexibility to split into two units and rent out one side – the best of both worlds.

Exclusive Penthouses

Penthouse One - 304 m²

Our most premium offering, the stunning Penthouse One, takes vertical living to a whole new level.

Penthouse Two - 174 m²

All the glam of the larger Penthouse in a Two Bedroom format – the ideal pied-à-terre for those high on optics.